Details
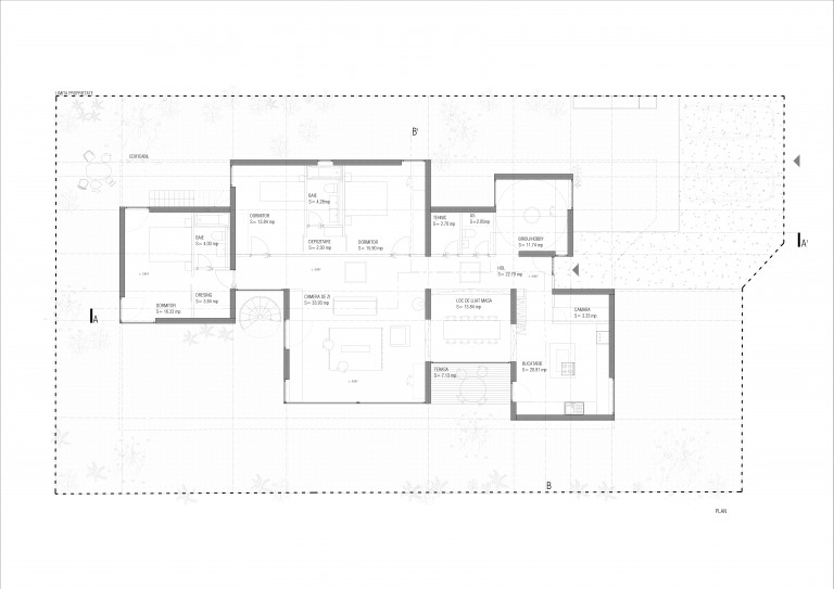
Casa trăieşte prin relaţionarea spaţiilor interioare cu grădina, grădină pe care o găsim la nivel de parter dar şi la nivel de terasă. Fiecare spaţiu al casei are o relaţie directă cu grădina, dar în acelaşi timp este diferit şi privat. Casa are o forma pavilionară, fiecare spaţiu fiind descoperit pe măsură ce parcurgi traseul acesteia, având o zonă de zi deschisă cât mai mult spre soare, iar zona de noapte fiind mai privată, cu deschideri spre curţi private. Din punct de vedere constructiv, casa are o structură în cadre din beton armat, ziduri din căramidă şi un finisaj exterior cu aspect de beton aparent. La interior sunt propuse materiale cât mai naturale, lucrându-se astfel cu lemn şi metal.












