Details
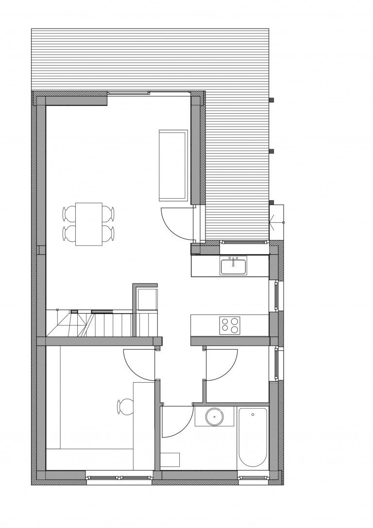
Beneficiarii si-au dorit o casa cat mai compacta care sa raspunda cerintelor lor ca familie, cu o arhitectura simpla si usor de realizat. Intr-un context in care imrejurimile sunt dezvoltate fara o directie bine stabilita am decis sa avem un volum alb cu linii bine definite. Volumul face trecerea dintre strada si gradina, intrarea in casa fiind prin lateralul casei, retrasa fata de zgomotul strazii, accentuand astfel deschiderea casei spre gradina si padure.











